409/65 Dudley Street, West Melbourne
- $750 per week
- 2 2 1
Fantastic apartment in an even better location
Situated a stone throw away from Southern Cross Station, Queen Victoria Market, Flagstaff garden, and trams to everywhere, this North West corner apartment with unobstructed views is second to none!
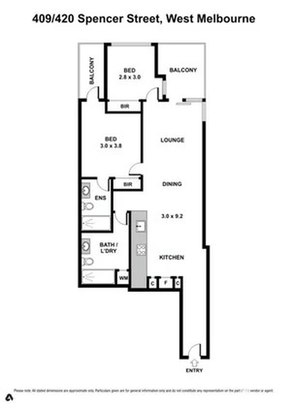
The designer kitchen features an abundance of pantry spaces, stone benchtop, stainless steel appliances such as gas cook top, oven and dishwasher. The air conditioned living space has timber flooring and opens up to the private balcony where you can enjoy the stunning views. How relaxing!
The two queen-sized bedrooms are filled with natural light and are fitted with built in robes, with the master bedroom serviced by an ensuite, while the second bedroom, a central bathroom.
Residents will have access to state of the art facilities such as gym, pool, BBQ, cinema, and lounge area.
Booking an inspection is easy! Simply click on "Request a Time" to register your details for an inspection time that suits you. Alternatively, "Get in Touch" with our Liveability Agents to enquire today, we look forward to meeting you soon!
By registering, you will be instantly informed of any updates, changes, or cancellations to your appointment.
Applications are processed after inspections have been completed. A link to apply will be provided at the inspection














